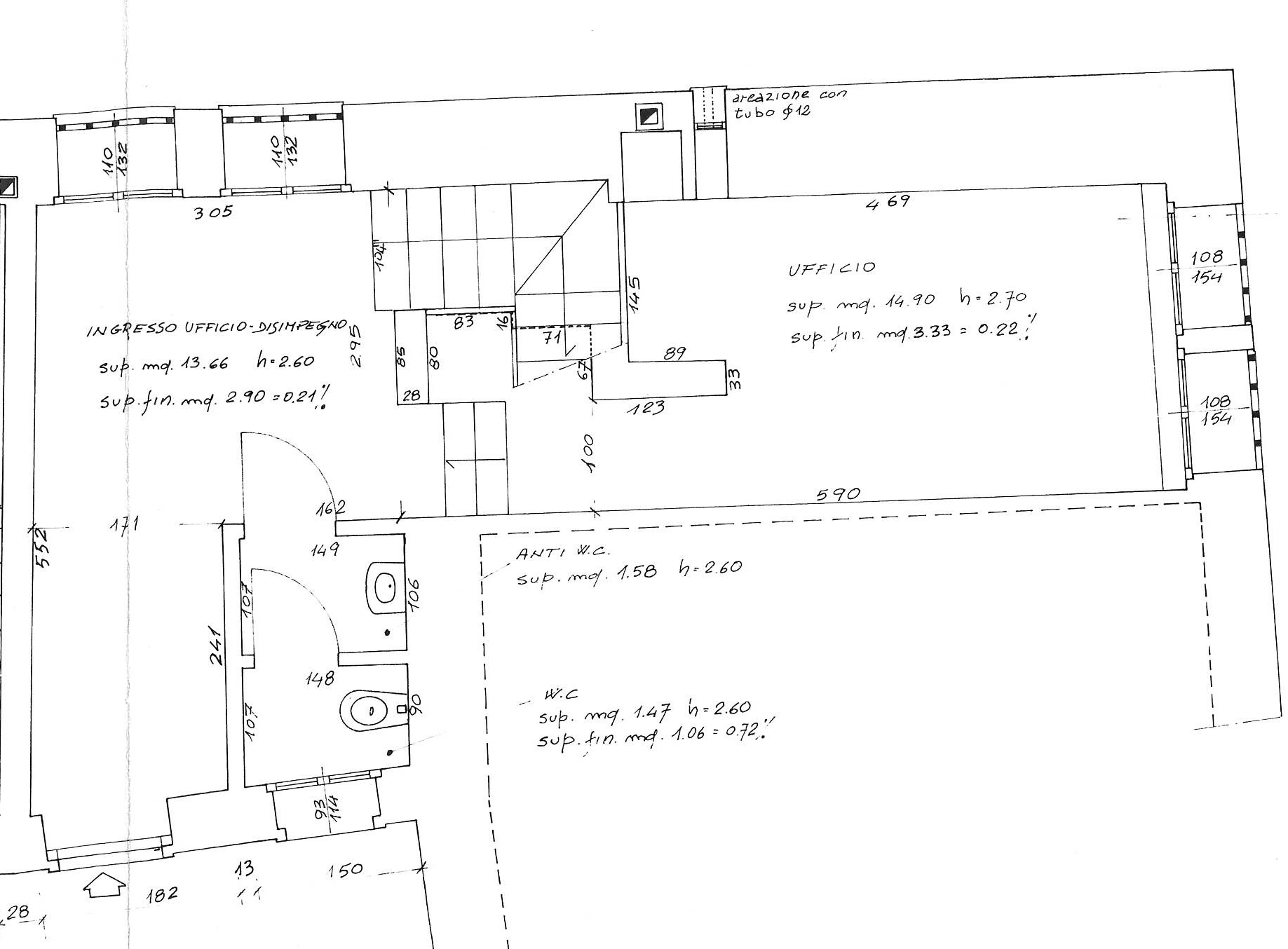
NOVE. Vicino al centro del comune, lungo strada che comunica con Bassano del ùgrappa, dispongo di un ufficio distribuito in un piano terra e due livelli soprqa come planimetrie allegate. Al piano terra l’uffico, oltre che all’ingresso indipendente, dispone di una stanza reception con bagno foinestrato e stanza archivio, al piano primo un ufficio e al piano secondo un altro ufficio. Come fimniture abbiamo marmo e gres, uffiico in ottimo stato d’uso con caldaia funzionante e radiatori lamellari. Prezzo di vendita € 50.000 e affitto € 350,00, senza spese condominiali. All’esterno l’immobile è comproprietario di una corte comune dove si può parcheggiare ma senza posto assegnato, in alternativa dall’altra parte della strada possiamo usufruire di un ampio parcheggio pubblico. PER ULTERIORI INFORMAZIONI VALERIO 340/4655263.
RICHIEDI INFORMAZIONI SU QUESTA PROPOSTA
Compila il form sottostante e sarai ricontattato quanto prima.



















